在朋友的推荐下,看了0513装饰网,经过一段时间的学习,目前由装修前的迷茫状态,已经进入一知半解状态。
这些天去了解了下中央空调,卫浴,地板,也去看了几个装修公司。边看边学,学以致用。网大的知识是非常有用的,让我可以在听销售人员解说时,除了点头之外,还可以问些问题。(这些都是在0513装饰网上学来的呢)
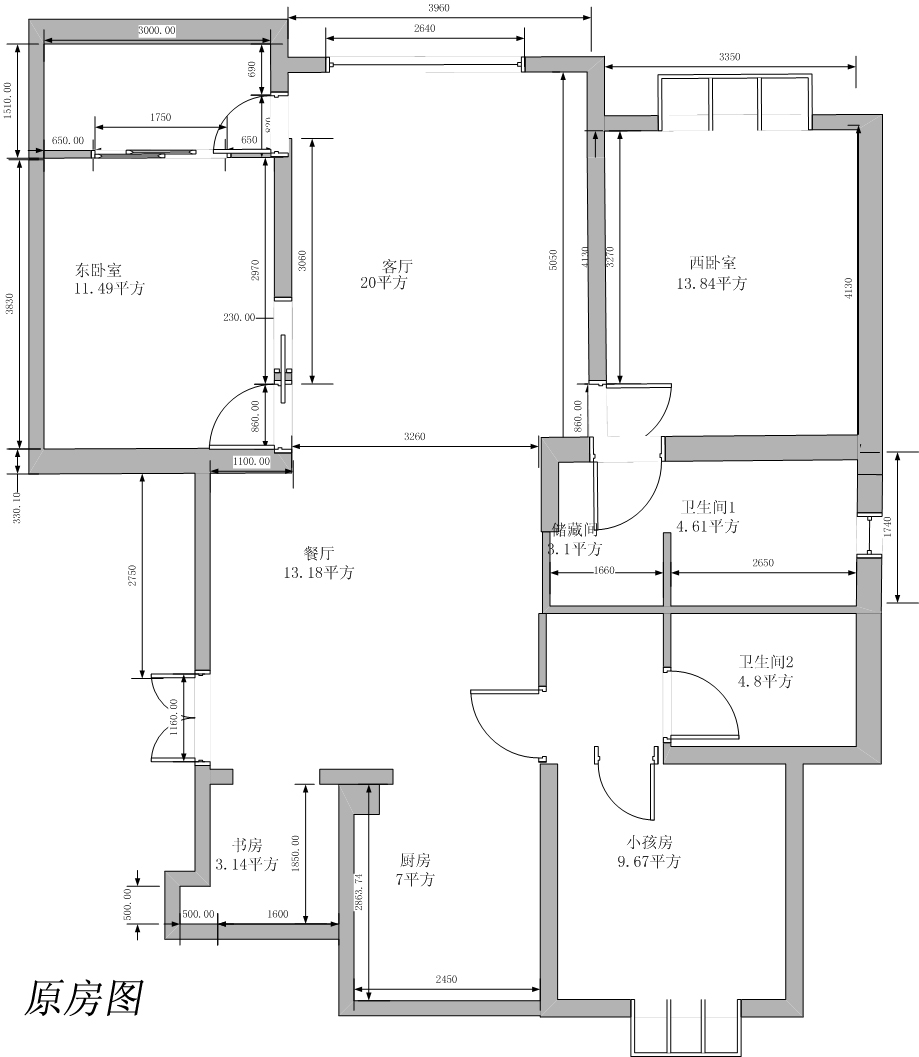
先上个房型图。(自己学着画画的,不是专业版)

现在拟做成的构想。(也是学着做的,非专业的。)
大家有什么好的建议吗?
厨房冰箱0.9米深,放在厨房,会冒出橱柜好多,太不美观,如果把墙往里敲掉些,把冰箱嵌在里面,不知是否会影响冰箱散热?
大家帮我看看冰箱该如何放置呢?冰箱打算用海尔 BCD-628WACW 628L 818*908*1790