楼主: longlive
打印 上一主题 下一主题

[其他话题] 莱茵回音壁

[复制链接]
31
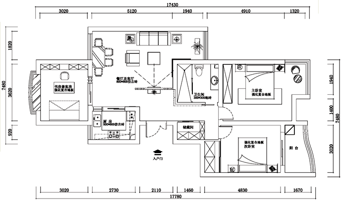
 楼主| 发表于 2007-5-23 20:58:27 | 只看该作者

设计师出的平面图


[此贴子已经被作者于2007-5-25 0:26:46编辑过]

kJxxdjcK.jpg (94.27 KB, 下载次数: 882)

kJxxdjcK.jpg
回复

使用道具 举报

32
 楼主| 发表于 2007-5-23 21:00:59 | 只看该作者

效果图




[此贴子已经被作者于2007-5-23 21:50:27编辑过]

A4EuuR03.jpg (101.15 KB, 下载次数: 843)

A4EuuR03.jpg
回复

使用道具 举报

33
发表于 2007-5-23 21:39:56 | 只看该作者

顶一下。

回复

使用道具 举报

34
发表于 2007-5-24 12:57:40 | 只看该作者

求助

我和LZ是隔壁,你的房子多少面积?我印象里是122平方的,咱们的得房率是不是低了点?

上周未去看房,在两个卫生间里的墙上都看到一个“等电位联结端子箱-不可触动”,那面墙我本来想敲掉的,可现在不知道能不能动那面墙了。

 


回复

使用道具 举报

35
发表于 2007-5-24 12:58:42 | 只看该作者
不知道LZ家里是不是也有这个东东?
回复

使用道具 举报

36
发表于 2007-5-24 13:05:17 | 只看该作者
啊!居然是邻居,巧着很呢!
回复

使用道具 举报

37
 楼主| 发表于 2007-5-23 16:13:27 | 只看该作者

18号论文答辩,花了一天的时间, 晚上吃了散伙饭,曲终人散,基本上就算是毕业了。

之前有听网帆说冠珠仿古砖征集样板房,刚好我家打算采用新中式的风格,要用到仿古砖,于是6号和冠珠仿古砖联系,联系的过程就不细述了,冠珠仿古砖的咸小姐很热情(这个姓氏我还是第一次听说,不知道用南通话称呼姓氏的时候是不是还和han一个发音)。

冠珠仿古砖的门店比较远,在中南世纪城名店街,所以它提供的一个服务比较贴心,“提供免费接送至门店看样”,我和吴昌余设计师约好了,一起去冠珠仿古砖的门店看展示的样品。冠珠家的咖啡不错,有个小插曲,冠珠的店员居然以为我是设计师,我觉得自己怎么看都不像是有艺术细胞的人。

关于砖的款式、颜色、纹理这种都是设计师来看,他对设计有整体的把握,这方面要尊重他的专业知识。我说说冠珠仿古砖的质量吧,同学们来分析看看:一是店员把一块砖竖着放,然后让砖自然着地,砰的一声响声,砖还没坏;然后店员把砖的一段靠在台阶上,然后我站上去踩踩也没坏。其他具体的什么技术指标我就不清楚了,设计师说从性价比来看,冠珠仿古砖还是不错的,还有想到网能让冠珠仿古砖进0513zs,质量应该没问题的,就打算定他家的砖。临走的时候看到冠珠仿古砖的卢总,年轻有为帅哥啊,他的胡子很酷^_^希望到时候出来的效果能较好的展示出冠珠仿古砖的效果。

8号和设计师一起看看南通的建材市场,主要是看看地板、门、橱柜、瓷砖等。因为吴昌余设计师来南通的时间不长,可能对南通的建材市场也不是很了解,刚好我也是,所以两个人看的过程就比较随意,看到大家都感兴趣的东西的时候,两个人相互评论评论,听他聊聊对设计的一些想法,学到了不少知识。

两个人逛建材市场的感觉是,总体来说建材还是一分钱一分货,有的样式很好看的建材,不用看价格就知道很贵。我 学经济的,对数字比较敏感,看任何建材的时候,脑子里第一个反应就是budget,预算千万不能超支。那淘到价格不贵,样式和质量又好的建材就要很花功夫,另外这个也比较考验设计师的本事了吧,用较少的钱达到较好的效果[em01]

总结一下,五一期间做的事情主要是定设计师、逛逛建材市场,由于我不在南通,因此效率比较低。五一期间淘到的唯一特价只是西蒙的开关,比较遗憾。

[此贴子已经被作者于2007-5-23 20:48:03编辑过]
回复

使用道具 举报

38
发表于 2007-5-23 16:32:31 | 只看该作者

哈哈。照片发上来看看。

回复

使用道具 举报

39
 楼主| 发表于 2007-5-24 21:33:36 | 只看该作者
QUOTE:
以下是引用西门扫雪在2007-5-24 12:58:42的发言:
不知道LZ家里是不是也有这个东东?

等电位联结的作用
卫生间未做等电位联结 《住宅设计规范》中第6.5.2条规定,卫生间宜做局部等电位联结。而装修工和用户往往忽视或不知这一规定,但等电位联结其实非常重要。卫生间做等电位联结,即在卫生间内将各种金属管道、楼板中的钢筋以及进入卫生间的保护线和用电设备外壳用40×4毫米热镀锌扁钢或6平方毫米的铜芯导线相互联通。卫生间一般都装有澡盆或淋浴盆,因此卫生间发生电击的可能性很大,卫生间屡有洗澡遭电击事故发生,造成人身伤害,这是因为人在淋浴时遍体湿透,人体阻抗大大下降,沿金属管道导入卫生间的一、二十伏电压即足以使人发生心室纤维颤动而致死,为此,在卫生间作局部等电位联结有助于减少电位差,有效的保证人身安全,这是非常值得的。在做等电位联结时,要保证等电位联结的可靠导通。等电位联结这一电气安全措施,并不需要复杂价昂的电气设备,它所耗用的不过是一些导线。另外采取等电位联结,实际上也实现了接地,因它所联结的管道及基础钢筋等本身起到了低电阻长寿命的接地作用,远胜过我们过去专门打入地下的人工接地装置。 由于目前我国等电位联结的实施尚在起始阶段,等电位联结用的金具和端子板尚无定型产品供应,建筑材料,设备(如浴盆)和一些铸铁管也尚未配置等电位联结用的接线端子,给施工安装增加了一些困难,也影响连接的美观,需在现场设法克服。
端子箱在住宅的卫生间洗澡时,人体皮肤因潮湿而阻抗下降,这时若有沿金属管道传来的较低电压亦可引起电击伤害事故。因此.对卫生间作等电位联结是大有必要的。GB50096—1999《住宅设计规范》6.5.2规定:卫生间宜作局部等电位联结。目前在建的宾馆和高级住宅楼,卫生间必须作等电位联结,对普通住宅的卫生间若有洗澡设备亦应作花费不多的等电位联结。

等电位联结
    端子箱在住宅的卫生间洗澡时,人体皮肤因潮湿而阻抗下降,这时若有沿金属管道传来的较低电压亦可引起电击伤害事故。因此,对卫生间作等电位联结是大有必要的。GB50096—1999《住宅设计规范》6.5.2规定:卫生间宜作局部等电位联结。目前在建的宾馆和高级住宅楼,卫生间必须作等电位联结,对普通住宅的卫生间若有洗澡设备亦应作花费不多的等电位联结。
    定型产品TD22等电位联结端子箱的推出,对等电位联结的施工和日常检查带来了极大的方便。TD22的规格和外形尺寸如附表所示。(后贴随附)
    等电位联结端子箱暗装在墙内,其进线为来自电源系统的PE线,其出线与所有要作等电位联结的金属体(例:浴缸、毛巾架、水管等)相连。

回复

使用道具 举报

40
发表于 2007-5-24 21:39:36 | 只看该作者
QUOTE:
以下是引用longlive在2007-5-24 21:33:36的发言:
QUOTE:
以下是引用西门扫雪在2007-5-24 12:58:42的发言:
不知道LZ家里是不是也有这个东东?

等电位联结的作用
卫生间未做等电位联结 《住宅设计规范》中第6.5.2条规定,卫生间宜做局部等电位联结。而装修工和用户往往忽视或不知这一规定,但等电位联结其实非常重要。卫生间做等电位联结,即在卫生间内将各种金属管道、楼板中的钢筋以及进入卫生间的保护线和用电设备外壳用40×4毫米热镀锌扁钢或6平方毫米的铜芯导线相互联通。卫生间一般都装有澡盆或淋浴盆,因此卫生间发生电击的可能性很大,卫生间屡有洗澡遭电击事故发生,造成人身伤害,这是因为人在淋浴时遍体湿透,人体阻抗大大下降,沿金属管道导入卫生间的一、二十伏电压即足以使人发生心室纤维颤动而致死,为此,在卫生间作局部等电位联结有助于减少电位差,有效的保证人身安全,这是非常值得的。在做等电位联结时,要保证等电位联结的可靠导通。等电位联结这一电气安全措施,并不需要复杂价昂的电气设备,它所耗用的不过是一些导线。另外采取等电位联结,实际上也实现了接地,因它所联结的管道及基础钢筋等本身起到了低电阻长寿命的接地作用,远胜过我们过去专门打入地下的人工接地装置。 由于目前我国等电位联结的实施尚在起始阶段,等电位联结用的金具和端子板尚无定型产品供应,建筑材料,设备(如浴盆)和一些铸铁管也尚未配置等电位联结用的接线端子,给施工安装增加了一些困难,也影响连接的美观,需在现场设法克服。
端子箱在住宅的卫生间洗澡时,人体皮肤因潮湿而阻抗下降,这时若有沿金属管道传来的较低电压亦可引起电击伤害事故。因此.对卫生间作等电位联结是大有必要的。GB50096—1999《住宅设计规范》6.5.2规定:卫生间宜作局部等电位联结。目前在建的宾馆和高级住宅楼,卫生间必须作等电位联结,对普通住宅的卫生间若有洗澡设备亦应作花费不多的等电位联结。

等电位联结
    端子箱在住宅的卫生间洗澡时,人体皮肤因潮湿而阻抗下降,这时若有沿金属管道传来的较低电压亦可引起电击伤害事故。因此,对卫生间作等电位联结是大有必要的。GB50096—1999《住宅设计规范》6.5.2规定:卫生间宜作局部等电位联结。目前在建的宾馆和高级住宅楼,卫生间必须作等电位联结,对普通住宅的卫生间若有洗澡设备亦应作花费不多的等电位联结。
    定型产品TD22等电位联结端子箱的推出,对等电位联结的施工和日常检查带来了极大的方便。TD22的规格和外形尺寸如附表所示。(后贴随附)
    等电位联结端子箱暗装在墙内,其进线为来自电源系统的PE线,其出线与所有要作等电位联结的金属体(例:浴缸、毛巾架、水管等)相连。

颇有研究

回复

使用道具 举报

41
 楼主| 发表于 2007-5-24 21:42:41 | 只看该作者
QUOTE:
以下是引用no200在2007-5-24 21:39:36的发言:
QUOTE:
以下是引用longlive在2007-5-24 21:33:36的发言:
QUOTE:
以下是引用西门扫雪在2007-5-24 12:58:42的发言:
不知道LZ家里是不是也有这个东东?

等电位联结的作用
卫生间未做等电位联结 《住宅设计规范》中第6.5.2条规定,卫生间宜做局部等电位联结。而装修工和用户往往忽视或不知这一规定,但等电位联结其实非常重要。卫生间做等电位联结,即在卫生间内将各种金属管道、楼板中的钢筋以及进入卫生间的保护线和用电设备外壳用40×4毫米热镀锌扁钢或6平方毫米的铜芯导线相互联通。卫生间一般都装有澡盆或淋浴盆,因此卫生间发生电击的可能性很大,卫生间屡有洗澡遭电击事故发生,造成人身伤害,这是因为人在淋浴时遍体湿透,人体阻抗大大下降,沿金属管道导入卫生间的一、二十伏电压即足以使人发生心室纤维颤动而致死,为此,在卫生间作局部等电位联结有助于减少电位差,有效的保证人身安全,这是非常值得的。在做等电位联结时,要保证等电位联结的可靠导通。等电位联结这一电气安全措施,并不需要复杂价昂的电气设备,它所耗用的不过是一些导线。另外采取等电位联结,实际上也实现了接地,因它所联结的管道及基础钢筋等本身起到了低电阻长寿命的接地作用,远胜过我们过去专门打入地下的人工接地装置。 由于目前我国等电位联结的实施尚在起始阶段,等电位联结用的金具和端子板尚无定型产品供应,建筑材料,设备(如浴盆)和一些铸铁管也尚未配置等电位联结用的接线端子,给施工安装增加了一些困难,也影响连接的美观,需在现场设法克服。
端子箱在住宅的卫生间洗澡时,人体皮肤因潮湿而阻抗下降,这时若有沿金属管道传来的较低电压亦可引起电击伤害事故。因此.对卫生间作等电位联结是大有必要的。GB50096—1999《住宅设计规范》6.5.2规定:卫生间宜作局部等电位联结。目前在建的宾馆和高级住宅楼,卫生间必须作等电位联结,对普通住宅的卫生间若有洗澡设备亦应作花费不多的等电位联结。

等电位联结
    端子箱在住宅的卫生间洗澡时,人体皮肤因潮湿而阻抗下降,这时若有沿金属管道传来的较低电压亦可引起电击伤害事故。因此,对卫生间作等电位联结是大有必要的。GB50096—1999《住宅设计规范》6.5.2规定:卫生间宜作局部等电位联结。目前在建的宾馆和高级住宅楼,卫生间必须作等电位联结,对普通住宅的卫生间若有洗澡设备亦应作花费不多的等电位联结。
    定型产品TD22等电位联结端子箱的推出,对等电位联结的施工和日常检查带来了极大的方便。TD22的规格和外形尺寸如附表所示。(后贴随附)
    等电位联结端子箱暗装在墙内,其进线为来自电源系统的PE线,其出线与所有要作等电位联结的金属体(例:浴缸、毛巾架、水管等)相连。

颇有研究

baidu的

回复

使用道具 举报

42
 楼主| 发表于 2007-5-24 19:02:21 | 只看该作者
QUOTE:
以下是引用西门扫雪在2007-5-24 12:57:40的发言:

求助

我和LZ是隔壁,你的房子多少面积?我印象里是122平方的,咱们的得房率是不是低了点?

上周未去看房,在两个卫生间里的墙上都看到一个“等电位联结端子箱-不可触动”,那面墙我本来想敲掉的,可现在不知道能不能动那面墙了。

 


你是几楼的?

实用面积大概90多吧

那个箱子我也看到的,具体能不能动我不是很清楚,你可以问问你家的设计师吧

回复

使用道具 举报

43
发表于 2007-5-25 08:25:57 | 只看该作者

说白了,就是一根接地线。

回复

使用道具 举报

44
发表于 2007-5-25 14:39:41 | 只看该作者
西门扫雪,我认识你对门的(601)
回复

使用道具 举报

45
发表于 2007-5-25 17:22:53 | 只看该作者
对门(601)是谁?做啥的?提前认识认识![em01][em01]
回复

使用道具 举报

46
发表于 2007-5-25 08:26:43 | 只看该作者

我看到有业主敲掉墙,再重新接地的。

回复

使用道具 举报

47
 楼主| 发表于 2007-5-25 08:33:38 | 只看该作者
QUOTE:
以下是引用温柔菜刀在2007-5-25 8:26:43的发言:

我看到有业主敲掉墙,再重新接地的。

能不敲尽量不敲吧

[此贴子已经被作者于2007-5-25 8:33:59编辑过]
回复

使用道具 举报

48
发表于 2007-5-25 09:27:37 | 只看该作者
我昨天看到春晖一家装修敲墙,砖头不下于100袋,简直是在拆房子[em01]
回复

使用道具 举报

49
发表于 2007-5-25 11:02:48 | 只看该作者
QUOTE:
以下是引用longlive在2007-5-24 19:02:21的发言:
QUOTE:
以下是引用西门扫雪在2007-5-24 12:57:40的发言:

求助

我和LZ是隔壁,你的房子多少面积?我印象里是122平方的,咱们的得房率是不是低了点?

上周未去看房,在两个卫生间里的墙上都看到一个“等电位联结端子箱-不可触动”,那面墙我本来想敲掉的,可现在不知道能不能动那面墙了。

 


你是几楼的?

实用面积大概90多吧

那个箱子我也看到的,具体能不能动我不是很清楚,你可以问问你家的设计师吧

风哥已经告诉俺了,那个就是个接地,没多大用处,可以拆的。

我是6楼的。

回复

使用道具 举报

50
发表于 2007-5-25 11:13:55 | 只看该作者

这个效果图到不错呢,也是设计师给设计的,echo请的是装修公司吗

回复

使用道具 举报

51
 楼主| 发表于 2007-5-25 11:30:25 | 只看该作者
QUOTE:
以下是引用zhouleixxx在2007-5-25 11:13:55的发言:

这个效果图到不错呢,也是设计师给设计的,echo请的是装修公司吗

是的,何氏的吴昌余设计师
回复

使用道具 举报

52
发表于 2007-5-25 11:31:15 | 只看该作者

对LZ的房型我也比较了解,对你们的设计提一点小意见。LZ家的卫生间窗户应该是对着小阳台的,如果按你目前的设计,卫生间窗户不是对着客厅了吗?冬天洗澡后的水气就不方便散开,全进了屋子。

虽然是请装修公司,有设计师,但一些小细节还是应该要考虑周到,毕竟以后还是自己住的。

个人观点,仅供参考!

[em04]
回复

使用道具 举报

53
 楼主| 发表于 2007-5-25 13:05:42 | 只看该作者
QUOTE:
以下是引用西门扫雪在2007-5-25 11:31:15的发言:

对LZ的房型我也比较了解,对你们的设计提一点小意见。LZ家的卫生间窗户应该是对着小阳台的,如果按你目前的设计,卫生间窗户不是对着客厅了吗?冬天洗澡后的水气就不方便散开,全进了屋子。

虽然是请装修公司,有设计师,但一些小细节还是应该要考虑周到,毕竟以后还是自己住的。

个人观点,仅供参考!

[em04]

恩,是的啊,还真没想到,得和设计师再沟通一下,谢谢你的建议哦
回复

使用道具 举报

54
发表于 2007-5-26 21:36:58 | 只看该作者

呵呵,今天在苏州遇到echo,苏大经济类硕士研究生,知识型帅哥模样.

一起聊了近两个小时,有知识有能力有想法有抱负!后生可畏啊!

8错8错!

回复

使用道具 举报

55
发表于 2007-5-28 10:57:28 | 只看该作者
QUOTE:
以下是引用西门扫雪在2007-5-25 11:31:15的发言:

对LZ的房型我也比较了解,对你们的设计提一点小意见。LZ家的卫生间窗户应该是对着小阳台的,如果按你目前的设计,卫生间窗户不是对着客厅了吗?冬天洗澡后的水气就不方便散开,全进了屋子。

虽然是请装修公司,有设计师,但一些小细节还是应该要考虑周到,毕竟以后还是自己住的。

个人观点,仅供参考!

[em04]

是的,我现在发现设计师考虑问题不可能都考虑周全,有些细节还得自己多考虑,不是说设计师不好,人难免的嘛
回复

使用道具 举报

56
 楼主| 发表于 2007-5-28 15:10:39 | 只看该作者
QUOTE:
以下是引用报表在2007-5-28 10:57:28的发言:
QUOTE:
以下是引用西门扫雪在2007-5-25 11:31:15的发言:

对LZ的房型我也比较了解,对你们的设计提一点小意见。LZ家的卫生间窗户应该是对着小阳台的,如果按你目前的设计,卫生间窗户不是对着客厅了吗?冬天洗澡后的水气就不方便散开,全进了屋子。

虽然是请装修公司,有设计师,但一些小细节还是应该要考虑周到,毕竟以后还是自己住的。

个人观点,仅供参考!

[em04]

是的,我现在发现设计师考虑问题不可能都考虑周全,有些细节还得自己多考虑,不是说设计师不好,人难免的嘛

恩,谢谢报表
回复

使用道具 举报

57
发表于 2007-5-28 18:49:02 | 只看该作者

看到你的房型图后,我就发现,我们家是你家楼上的隔壁!

回家去就和wuli西门吹嘘我的发现的。

去年5月份wuli买房子的时候,墙壁都还留了缺口,我们就走到03去的。

嘿嘿,网络一下子就能拉近陌生人之间的距离呢!

[此贴子已经被作者于2007-5-28 18:53:17编辑过]
回复

使用道具 举报

58
 楼主| 发表于 2007-5-29 07:45:59 | 只看该作者
QUOTE:
以下是引用玲珑叮当在2007-5-28 18:49:02的发言:

看到你的房型图后,我就发现,我们家是你家楼上的隔壁!

回家去就和wuli西门吹嘘我的发现的。

去年5月份wuli买房子的时候,墙壁都还留了缺口,我们就走到03去的。

嘿嘿,网络一下子就能拉近陌生人之间的距离呢!


呵呵,缘分啊

回复

使用道具 举报

59
发表于 2007-5-29 10:57:44 | 只看该作者
QUOTE:
以下是引用longlive在2007-5-23 16:13:27的发言:

18号论文答辩,花了一天的时间, 晚上吃了散伙饭,曲终人散,基本上就算是毕业了。

之前有听网帆说冠珠仿古砖征集样板房,刚好我家打算采用新中式的风格,要用到仿古砖,于是6号和冠珠仿古砖联系,联系的过程就不细述了,冠珠仿古砖的咸小姐很热情(这个姓氏我还是第一次听说,不知道用南通话称呼姓氏的时候是不是还和han一个发音)。

冠珠仿古砖的门店比较远,在中南世纪城名店街,所以它提供的一个服务比较贴心,“提供免费接送至门店看样”,我和吴昌余设计师约好了,一起去冠珠仿古砖的门店看展示的样品。冠珠家的咖啡不错,有个小插曲,冠珠的店员居然以为我是设计师,我觉得自己怎么看都不像是有艺术细胞的人。

关于砖的款式、颜色、纹理这种都是设计师来看,他对设计有整体的把握,这方面要尊重他的专业知识。我说说冠珠仿古砖的质量吧,同学们来分析看看:一是店员把一块砖竖着放,然后让砖自然着地,砰的一声响声,砖还没坏;然后店员把砖的一段靠在台阶上,然后我站上去踩踩也没坏。其他具体的什么技术指标我就不清楚了,设计师说从性价比来看,冠珠仿古砖还是不错的,还有想到网能让冠珠仿古砖进0513zs,质量应该没问题的,就打算定他家的砖。临走的时候看到冠珠仿古砖的卢总,年轻有为帅哥啊,他的胡子很酷^_^希望到时候出来的效果能较好的展示出冠珠仿古砖的效果。

8号和设计师一起看看南通的建材市场,主要是看看地板、门、橱柜、瓷砖等。因为吴昌余设计师来南通的时间不长,可能对南通的建材市场也不是很了解,刚好我也是,所以两个人看的过程就比较随意,看到大家都感兴趣的东西的时候,两个人相互评论评论,听他聊聊对设计的一些想法,学到了不少知识。

两个人逛建材市场的感觉是,总体来说建材还是一分钱一分货,有的样式很好看的建材,不用看价格就知道很贵。我 学经济的,对数字比较敏感,看任何建材的时候,脑子里第一个反应就是budget,预算千万不能超支。那淘到价格不贵,样式和质量又好的建材就要很花功夫,另外这个也比较考验设计师的本事了吧,用较少的钱达到较好的效果[em01]

总结一下,五一期间做的事情主要是定设计师、逛逛建材市场,由于我不在南通,因此效率比较低。五一期间淘到的唯一特价只是西蒙的开关,比较遗憾。


不错,看日记还能听歌,版主想得太周到了,赞一下[em17]
[此贴子已经被作者于2007-5-29 10:59:23编辑过]
回复

使用道具 举报

60
发表于 2007-5-29 19:37:29 | 只看该作者
享受...
回复

使用道具 举报

您需要登录后才可以回帖 登录 | 注册

本版积分规则

快速回复 返回顶部 返回列表