|
戌子岁廿三
祭灶祈福开光求嗣订婚婚娶纳采裁衣合帐安床出行修造动土上梁作灶入舍
卯时大吉
早晨很早去了新房,六点准时在财位和灶台位敲了两下算是开工了。等到7时40分,师傅刘S带领其它工人进场,在美女S和自由F还未到的情况下,我订了水,发了烟,和他们简单交待了几句。因为我对刘师傅的质量还是比较信任的,而且工艺和要求在合同里面已经有了详尽的描述,在此时主要强调的文明施工,希望刘师傅能严格管理,做好劳保保护、爱护卫生、在早八点晚六点以及中午午休时间严禁噪音作业,以免影响邻里日常生活。在傍晚六点左右,我买了点小点心去楼下几家邻居打了声招呼,为今后一段时间装修可能带给邻居的不便表示歉意。
大概9时半左右,S到了,针对图纸向刘师傅做了技术交底,几处细节处理,忘了拍照,改天有空再上传照片吧。到10时40分,F也到场了,戴了顶帅气的棒球帽,比平时显得还要酷些。F向L说明了施工工艺要求后,逐一仔细的对施工隐患和以后的隐蔽工程做了询问,确认没有问题后方才放心。F还发现了房屋本身的质量:1、电视背景墙有部分开裂,墙体有些不实的感觉。2、窗台角有水痕,需要确认是否属于漏水。这个需要向物业交涉!
我们善于破坏一个旧世界

和自由风的合影

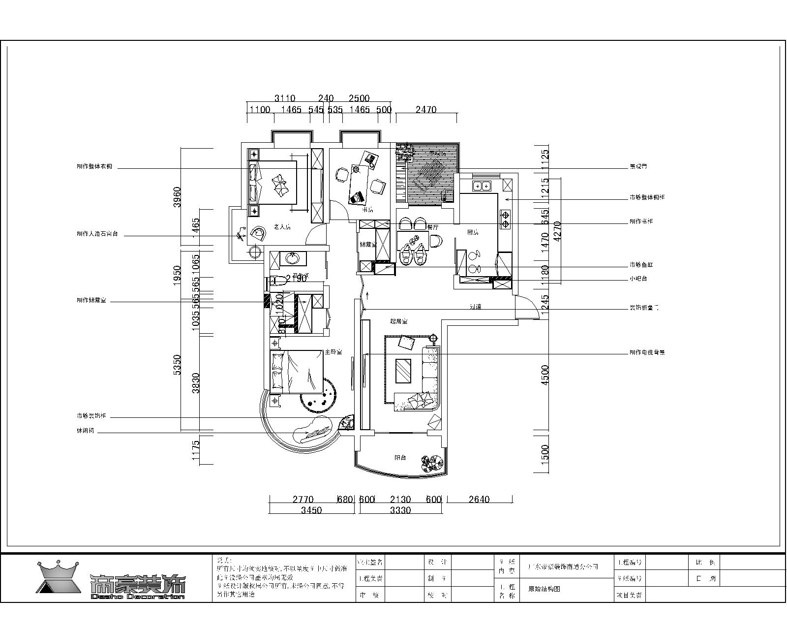
下午是水电开槽,这个过程中,工人难免会标记错误,我每个地方都仔细对照图纸确认,发现两处错误,一处在厨房里和橱柜设计图的插座位置不符,虽然也可以偏离20cm,但肯定没设计图上标示的美观;另一处是书房的弱电位置,因为我考虑以后会将书房重新装饰成童房,他们开的位置可能会影响到我床的布置,所以立即做了调整,为未来留了足够的发挥空间。
水电安装还需要我一些尺寸和待确认项目:
1、客卫储水式热水器的尺寸和安装形式。(我想尽量把那大家伙装在吊顶里,最后有控制板的)
2、主卫、客卫台盆尺寸。
3、主卫即热式热水器的尺寸,安装位置。
4、南阳台洗衣机后进水空间狭小,如何处理。(我和L讨论不砌墙,横向进水,待S确认)
5、弱点盒移到储藏间的衣柜抽屉下平放。(待S确认)
6、投影仪布线,分别接电视\DVD\电脑。(确认使用几个端子)
7、投影仪和环绕音响挂在吊顶处,记得在吊顶制作时木工板加强。
8、客卧和书房的空调本打算移位,但冷凝水排放有困难,S建议放在衣柜顶处。(a.S出修改图;b.与L确认是否施工可行,不影响使用)
收工后,我和妈妈去五星电器看了相关电器,准备明天有空在网上再查查相关数据,尽快答复L。
材料方面,今天在现场订了无框阳台。
|